Unique Investment Opportunity
Offered to the market for the first time since its construction, 13-15 Regent Street commands an excellent street position on the cusp of the Sandy Bay Road restaurants and amenities strip, walking distance of the CBD and the UTAS Sandy Bay campus. Fully occupied tenancies across 18 flats, with on-site storage spaces, astute investors can enjoy a solid investment offering them consistent returns and low to no vacancy all year around.
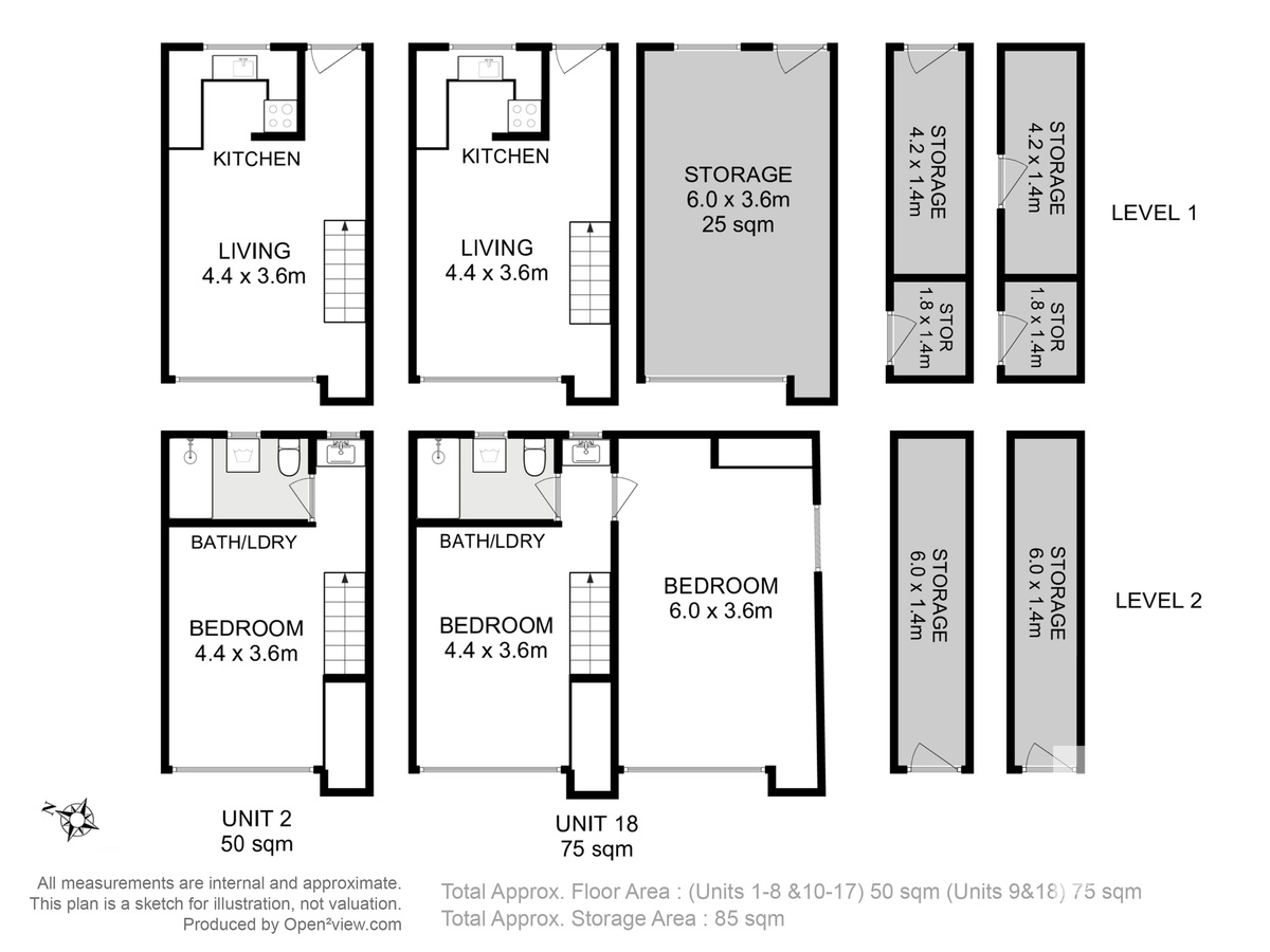
The site comprises 16 x 1 bedroom, 1 bathroom flats, and 2 x 2 bedroom, 1 bathroom flats. All flats are in neat condition with all having enjoyed updates to flooring, paintwork and kitchen spaces in the last few years. Each flat has its own off-street carpark, and the site contains 2 visitor spots. Garden spaces and communal grounds are neat and low maintenance, furthering the comfort of your new investment.
* Council Rates are currently approx. $9,844 per annum
* Water Rates are currently approx. $4,193 per quarter
* Rental income currently $6,510 per week
For full financial details and to coordinate an inspection, please contact Edwards Windsor today. Please note there will not be any open homes for this property.
| Bedrooms | 20 |
|---|---|
| Bathrooms | 18 |
| Car Spaces | 20 |
| Land Area | 1,573m2 |
| Building Area | 1,008m2 |

























































