Sunny Hillside Family Home
Perched proudly atop the hillside, 76 Bayfield Street captures all-day sunshine and frames a stunning, uninterrupted outlook to Kunanyi/Mount Wellington. Warm, inviting, and filled with potential, this much-loved family home offers flexible living options ideal for growing families, multi-generational living, or those seeking an attractive investment opportunity.
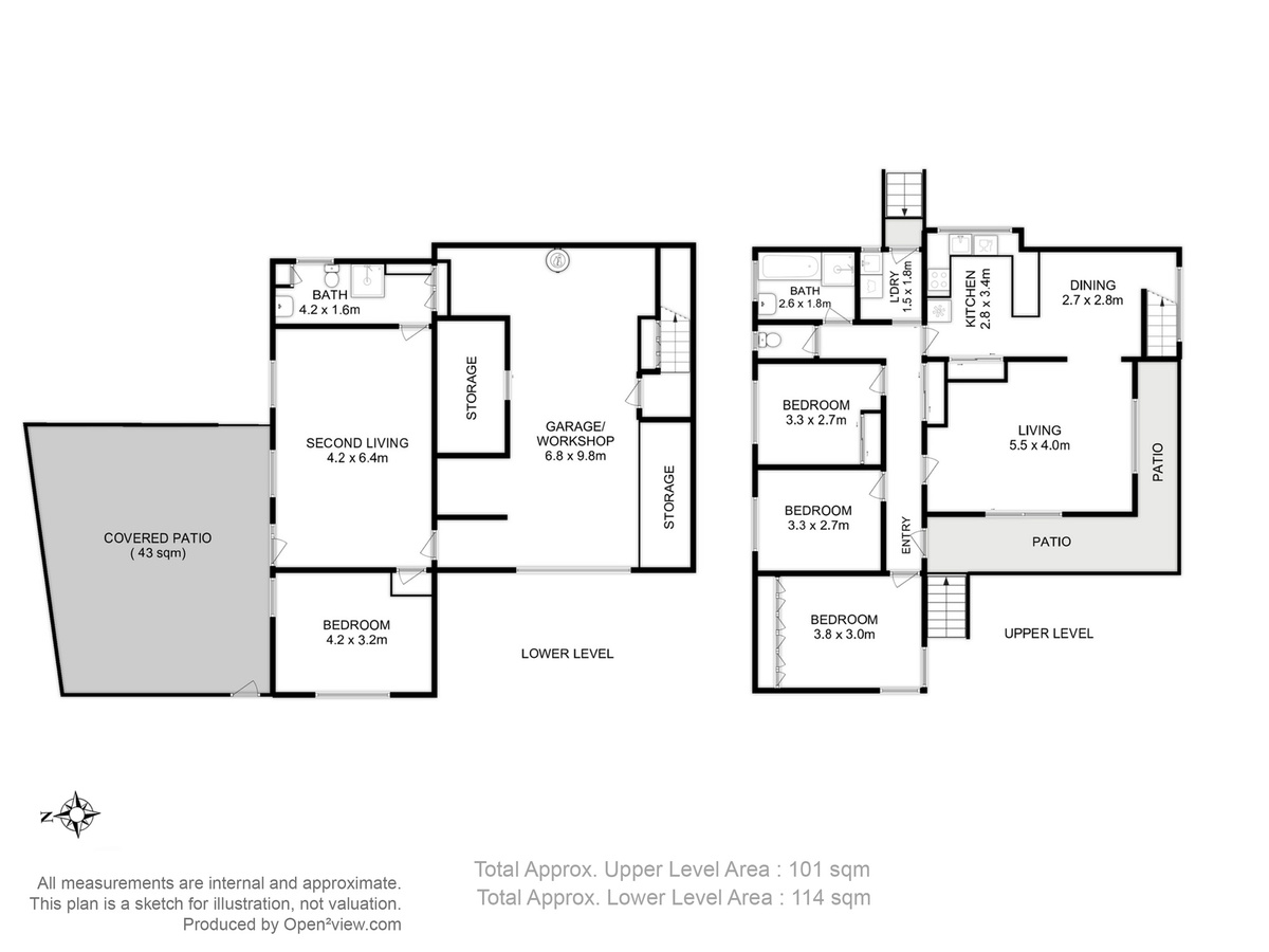
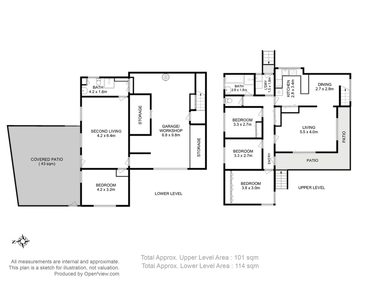
Upstairs, the home features three comfortable bedrooms (two containing built in robes), a bright and functional kitchen, a family bathroom, and a welcoming living zone designed to take in the beautiful mountain views. Downstairs reveals a fantastic opportunity with a spacious second living area, an additional bedroom, and its own bathroom — perfect for guests, teenagers, or creating a private retreat or workspace, potentially even the chance for a self-contained space (subject to relevant approvals).
With its elevated position, sun-drenched aspect, and versatile layout, this property represents a wonderful opportunity in one of the Eastern Shore’s most desirable suburbs.
Key Features:
• 3 bedrooms, kitchen, family bathroom and main living upstairs
• 1 bedroom, second living area and bathroom downstairs
• Spectacular views to Kunanyi/Mount Wellington
• Sun-filled interiors throughout
• Covered patio area for outdoor entertaining
• Ideal for families, dual living, or future investment
• Situated in a highly desirable, peaceful pocket of Bellerive
• Within very short commute of Eastlands, shops and amenities
• Comfortable 10-15 minute commute of both Hobart CBD and the airport
• Spacious garage with ample room for storage and neat workshop space
• Room for multiple cars to park off street
• Established garden and vegetable patch with low maintenance needs
Your next chapter begins at 76 Bayfield Street — a home that offers space, views, and possibilities. Let this hillside haven welcome you home.
If this sounds like the perfect property that you’ve been searching for, and you’re ready to buy now, please contact Edwards Windsor today to arrange your private inspection.
| Bedrooms | 4 |
|---|---|
| Bathrooms | 2 |
| Car Spaces | 4 |
| Land Area | 589m2 |
| Building Area | 218m2 |






















































